
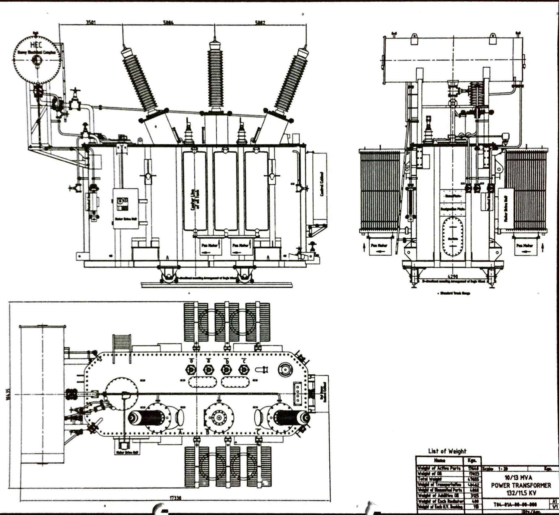
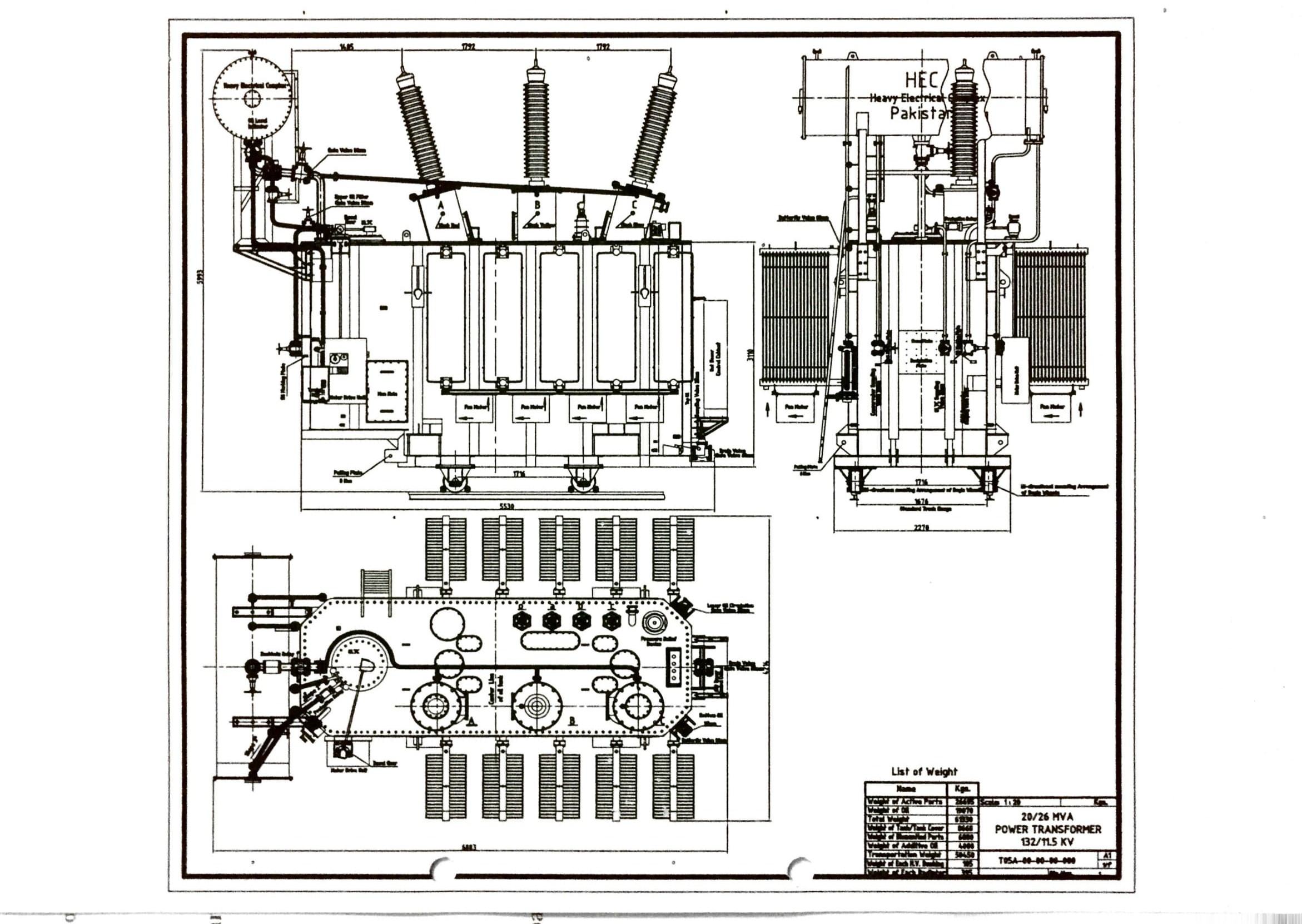
The presentmanufacturing range includes power transformers of unit rating upto 40 MVA &voltage 132 KV. In the near future HEC plans to commence production of 220 KV power transformers of unit rating upto160 MVA.
The factory has the capacity to produce power transformers of total capacity of 3000 MVA annually. Prototypes of following power transformers included in the production program of HEC have been successfully tested in high voltage, high power & short circuit testing laboratories in China:-
The above production program is exclusively based on the requirements of Water & Power Development Authority of Pakistan (WAPDA) & Karachi Electric Supply Corporation (KESC). Both these organization were closely associated in the products development stage & their requirements are fully incorporated in the design of the products so these Power Transformers could easily become the part of the country’s Power System.





